- Trang chủ
- /
- Kiến thức chuyên ngành
- /
- Các kích thước phòng máy phát điện tiêu chuẩn cần biết
Các kích thước phòng máy phát điện tiêu chuẩn cần biết
Trong quá trình lắp đặt và vận hành máy phát điện công nghiệp, việc thiết kế đúng kích thước phòng máy phát điện là yếu tố then chốt giúp đảm bảo an toàn, hiệu quả kỹ thuật và thẩm mỹ cho toàn bộ công trình. Phòng máy không chỉ là nơi đặt thiết bị mà còn cần đáp ứng yêu cầu về cách âm, thoát khí, kết nối hệ thống điện, và tạo không gian thuận tiện cho việc bảo trì, sửa chữa.
Tùy theo quy mô dự án, phòng máy có thể được bố trí tại tầng hầm, tầng kỹ thuật trong các tòa nhà cao tầng, chung cư hoặc xây dựng độc lập bên ngoài tại các nhà xưởng, khu công nghiệp. Dù được đặt ở đâu, việc xây dựng phòng máy phát điện đều cần được tính toán chính xác về diện tích, chiều cao, khoảng cách kỹ thuật và hệ thống phụ trợ đi kèm để đảm bảo sự đồng bộ với tổng thể kiến trúc và yêu cầu vận hành lâu dài.
Cơ sở thiết kế phòng máy phát điện
Việc xác định kích thước phòng máy phát điện cần được dựa trên những cơ sở thiết kế rõ ràng và tuân thủ nghiêm ngặt các quy chuẩn kỹ thuật hiện hành. Điều này không chỉ đảm bảo hiệu suất vận hành ổn định cho máy phát điện công nghiệp, mà còn góp phần duy trì sự an toàn, tối ưu không gian và đảm bảo tính bền vững cho toàn bộ công trình.
Hồ sơ thiết kế được lập dựa trên các căn cứ sau:
- Hồ sơ thiết kế phần kiến trúc của công trình
- Các tiêu chuẩn, quy phạm thiết kế theo quy định hiện hành, bao gồm:
Quy chuẩn xây dựng Việt Nam
-
QCXDVN 09:2005 - Các công trình sử dụng năng lượng hiệu quả
-
11 TCN 18¸21:2006 - Quy phạm trang bị điện
-
TCVN 4756:1989 - Quy phạm nối đất và nối không
-
TCXD 25:1991 - Thiết kế đường dẫn điện trong nhà ở và công trình công cộng
-
TCXD 27:1991 - Thiết kế lắp đặt thiết bị điện trong nhà ở và công trình công cộng
-
TCXDVN 394:2007 - Thiết kế hệ thống điện trong công trình xây dựng – Phần an toàn điện
Từ những cơ sở trên, kiến trúc sư và kỹ sư thiết kế sẽ tiến hành đánh giá yêu cầu kỹ thuật cụ thể của máy phát điện, điều kiện lắp đặt và vận hành thực tế để đưa ra phương án tối ưu về mặt không gian, cách âm, thông gió và kết cấu hạ tầng.

Các tiêu chuẩn kích thước phòng máy phát điện đạt chuẩn và cách lắp đặt
1. Kích thước phòng máy phát điện cần tiêu chuẩn như thế nào?
Việc thiết kế kích thước phòng máy phát điện đúng chuẩn là yếu tố tiên quyết đảm bảo vận hành an toàn, hiệu quả và thuận tiện bảo trì trong quá trình sử dụng, đặc biệt đối với máy phát điện công nghiệp công suất lớn.
Theo khuyến nghị kỹ thuật, kích thước phòng đặt máy cần tuân theo các nguyên tắc sau:
- Chiều rộng phòng = Chiều rộng tổng thể của máy + khoảng cách an toàn hai bên (tối thiểu 800mm mỗi bên). Nếu trong phòng có đặt thêm bồn dầu dự phòng, tủ điện hoặc các thiết bị phụ trợ khác thì cần cộng thêm phần không gian cho các thiết bị đó.
- Chiều dài phòng = Chiều dài máy + chiều dài bộ tiêu âm gió ra, gió vào, chụp thoát gió + khoảng trống tối thiểu 1000mm. Tương tự, nếu có thiết bị bổ sung thì cần tính thêm không gian tương ứng.
- Chiều cao phòng = Chiều cao máy + chiều cao bộ giảm thanh, ống khói + khoảng cách an toàn tối thiểu 1000mm phía trên.
Đối với các công trình lớn, việc thiết kế phòng đặt máy không chỉ dừng lại ở việc đảm bảo kích thước vừa đủ mà còn cần cân nhắc các yếu tố kỹ thuật như hệ thống thông gió, tiêu âm, thoát nhiệt và an toàn cháy nổ.

2. Bệ máy và hệ thống giảm chấn
Khi thiết kế phòng đặt máy phát điện, ngoài việc đảm bảo đúng kích thước phòng máy phát điện, thì yếu tố kỹ thuật liên quan đến bệ máy và giảm chấn cũng vô cùng quan trọng, nhất là với các dòng máy phát điện công nghiệp có công suất lớn.
Đối với máy phát điện công suất nhỏ, có thể không cần lắp bệ máy riêng. Tuy nhiên, ở những dòng công suất trung bình đến lớn, việc xây dựng bệ máy bằng bê tông cốt thép là bắt buộc để đảm bảo máy không ảnh hưởng đến kết cấu sàn và giảm rung khi vận hành. Chi tiết kỹ thuật như sau:
- Chiều dày bệ máy: từ 10cm – 30cm.
- Kích thước bệ máy: lớn hơn tổng thể của máy phát mỗi bên từ 10 – 50cm, giúp dễ dàng bố trí lò xo giảm chấn và tạo không gian thao tác vận hành.
- Giảm chấn: Các lò xo giảm chấn cần được lắp đặt với tổng tải trọng gấp đôi tải trọng máy để đảm bảo máy không gây rung lắc khi chạy. Ví dụ: máy phát điện 1100kVA nặng 8 tấn, cần lắp 8 lò xo giảm chấn (mỗi bên 4 lò xo), mỗi lò xo chịu tải tối thiểu 2 tấn.
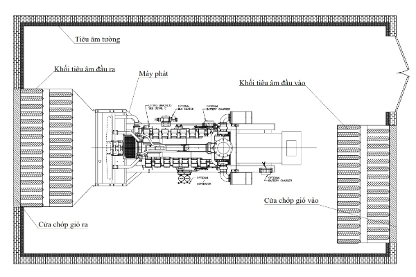
3. Hệ thống tiêu âm phòng máy phát điện
Đối với các máy phát điện công nghiệp lắp đặt gần khu dân cư, trường học hoặc bệnh viện, yêu cầu kiểm soát tiếng ồn là cực kỳ khắt khe. Vì vậy, việc thiết kế hệ thống tiêu âm cho phòng máy phát điện là yếu tố không thể thiếu.
Một hệ thống tiêu âm tiêu chuẩn gồm:
- Tiêu âm trần và tường phòng máy: Cấu tạo từ khung thép, bông thủy tinh tỷ trọng 80–100kg/m³, vải chống cháy và tôn đột lỗ. Độ dày lớp tiêu âm từ 80 – 100mm giúp cách âm hiệu quả.
- Khối tiêu âm đầu vào và đầu ra:
Thiết kế theo dạng khối ghép đan xen, diện tích:
-
Đầu vào: 1.3 – 1.5 lần diện tích két nước.
-
Đầu ra: 1.1 – 1.3 lần diện tích két nước.
- Bộ giảm thanh sơ cấp và thứ cấp:
-
Bên ngoài làm bằng thép chắc chắn.
-
Bên trong chứa bông thủy tinh, vải chống cháy và tôn đột lỗ (ở bô sơ cấp).
-
Bô thứ cấp có cấu trúc ống đan xen giúp triệt tiêu luồng âm.
- Cửa chớp gió: Làm từ thép, cấu thành nan chớp có lưới inox chống chuột. Vừa giúp lấy gió tươi từ ngoài vào, vừa hỗ trợ thoát khí nóng ra môi trường.

4. Hệ thống cấp dầu cho máy phát điện
Khi thiết kế phòng đặt máy phát điện, đặc biệt là với máy phát điện công nghiệp công suất lớn, hệ thống cấp dầu diesel đóng vai trò quan trọng trong việc đảm bảo máy vận hành liên tục và an toàn. Không giống như các dòng máy nhỏ có bồn dầu tích hợp trên khung chassis, các máy công suất lớn thường không tích hợp bồn dầu sẵn do kích thước và trọng lượng máy đã rất lớn, việc tích hợp thêm bồn dầu sẽ gây khó khăn cho vận chuyển, lắp đặt.
Tùy theo công suất tiêu thụ nhiên liệu, cần tính toán dung tích bồn dầu phù hợp, và lựa chọn mô hình cấp dầu tối ưu:
- Hệ thống cấp dầu đơn (1 bồn dầu): Thiết kế đơn giản, chỉ bao gồm đường ống dẫn dầu, van khóa, thước thăm dầu, và ống thông hơi. Động cơ sẽ tự hút nhiên liệu trực tiếp mà không cần đến bơm cấp dầu tự động.
- Hệ thống cấp dầu kép (từ 2 bồn trở lên): Yêu cầu hệ thống bơm tự động trung chuyển dầu từ bồn dầu dự trữ đến bồn dầu ngày. Hệ thống này sử dụng cảm biến mực dầu và van điện để kiểm soát lưu lượng chính xác, đảm bảo cung cấp nhiên liệu liên tục mà không gây tràn hoặc thiếu dầu khi vận hành.

5. Hệ thống thoát khí thải
Bên cạnh yếu tố kích thước phòng máy phát điện, hệ thống thoát khí thải là một phần bắt buộc phải có trong các dự án lắp đặt máy phát điện công nghiệp, nhằm kiểm soát lượng khí độc và đảm bảo an toàn môi trường theo đúng quy chuẩn quốc gia.
Các chỉ số tiêu chuẩn khí thải theo QCVN 19:2009/BTNMT/B:
|
Chỉ tiêu |
Giới hạn (mg/Nm³) |
Phương pháp thử |
|
CO |
≤ 1000 |
TCVN 7242:2003 |
|
SO₂ |
≤ 500 |
US EPA method 6 |
|
NO₂ |
≤ 850 |
US EPA method 6 |
|
Bụi tổng |
≤ 200 |
US EPA method 6 |
Cấu tạo hệ thống thoát khí thải tiêu chuẩn gồm:
Đường ống dẫn khói: Chất liệu ống thép mạ kẽm bọc bảo ôn bằng bông thủy tinh (tỷ trọng 80–100 kg/m³) và bọc ngoài bằng inox để cách nhiệt, chống ăn mòn. Ngoài ra, có thể sử dụng ống inox toàn phần để tăng độ bền và tính thẩm mỹ.
Bộ lọc khí thải: Làm từ thép không gỉ T304, được sản xuất theo tiêu chuẩn BS 3405:1983 của Anh và thử nghiệm theo Báo cáo số 2599209 (Singapore, 1999). Bộ lọc vận hành dựa trên phản ứng hóa học để loại bỏ các khí độc hại như:
-
CO + ½O₂ → CO₂
-
HC + ½O₂ → CO₂ + H₂O
-
PAH + O₂ → CO₂ + H₂O
-
Aldehyde + O₂ → CO₂ + H₂O
Hiệu quả lọc khí thải sau khi qua hệ thống:
-
Giảm CO: lên tới 90%
-
Giảm Hydrocarbon (HC): lên tới 90%
-
Giảm hạt muội: 25–30%
-
Giảm phân tử hữu cơ hòa tan: lên tới 85% (Trong điều kiện vận hành và nhiệt độ tối ưu)
6. Hệ thống tiếp địa an toàn cho máy phát điện
Trong phòng máy, bắt buộc phải triển khai 2 hệ thống nối đất độc lập:
-
Tiếp địa cho trung tính máy phát điện: điện trở nối đất Rnd ≤ 4 Ω.
-
Tiếp địa an toàn cho vỏ thiết bị như vỏ máy biến áp, tủ hạ thế, vỏ thiết bị điện: Rnd ≤ 4 Ω.
Toàn bộ khung vỏ thiết bị, giá đỡ, cửa thép, ống dẫn bằng kim loại đều phải được đấu nối chắc chắn vào hệ thống tiếp địa để đảm bảo an toàn điện.

7. Hệ thống chiếu sáng phòng máy
Phòng máy phát điện cần trang bị đèn chiếu sáng và ổ cắm điện theo đúng tiêu chuẩn kỹ thuật. Dây dẫn chiếu sáng nên sử dụng loại dây đồng bọc PVC tiết diện 2×1,5mm², luồn trong ống thép để chống cháy và va đập.
Công tắc điều khiển đặt tại cửa ra vào, bố trí ánh sáng hợp lý, không bị che khuất, đủ độ sáng cho việc bảo trì và vận hành.
8. Phòng chống cháy nổ
Phòng máy phát điện cần trang bị bình chữa cháy đúng quy định, đảm bảo sẵn sàng xử lý tình huống khẩn cấp. Khi xảy ra cháy nổ, cần nhanh chóng:
-
Ngắt nguồn điện khẩn cấp.
-
Sử dụng bình cứu hoả tại chỗ để dập lửa.
-
Sơ cứu người bị nạn (nếu có) và đưa đến cơ sở y tế gần nhất.
-
Báo ngay cho lực lượng phòng cháy chữa cháy và chủ đầu tư nếu tình hình không thể kiểm soát.
Thông qua việc tuân thủ đầy đủ các quy chuẩn kỹ thuật này, không chỉ đảm bảo an toàn cho người vận hành mà còn nâng cao hiệu suất hoạt động của máy phát điện công nghiệp. Hãy lưu ý các thông số kỹ thuật ngay từ giai đoạn thiết kế để phòng máy đạt chuẩn và hoạt động bền vững theo thời gian. Nếu bạn có thắc mắc về cách lắp đặt cũng như triển khai máy phát điện công nghiệp hãy liên hệ với Dianyo Powergen ngay hôm nay để được hỗ trợ.
Đối tác chính








